今月のおすすめアパート・貸家物件
コンフォート・ファイン
アパート・貸家物件 2K~ | 物件管理No.15 | 入居者募集中。
おすすめポイント[パノラマ写真]
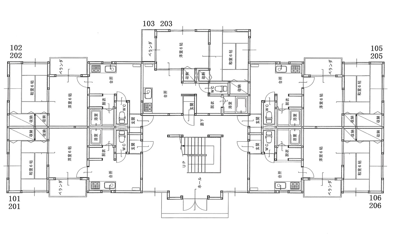
間取り図・地図
物件情報
所在地 | 由利本荘市一番堰38番地 | ||
|---|---|---|---|
物件種別 | アパート | ||
賃料 | 48,000円 | ||
間取り | 2DK | 専有面積 | 38.92m2 |
構造 | 木造亜鉛メッキ鋼板葺き | ||
敷金 | 1ヶ月 | ||
礼金 | なし | ||
共益費 | 2,000円 | ||
仲介手数料 | 1ヶ月(消費税別) | ||
賃貸住宅補償総合保険 | 18,000円~/2年 | ||
保証委託料(アーク賃貸保証) | 賃料×80% | ||
決済サービス+mamorocca | 500円/月 | ||
築年月 | 平成15年3月 | ||
駐車料金 | 2台分無料 | ||
条件 | エアコン/ バス・トイレ別/ ガス給湯ボイラー/ 温水洗浄便座/ ペアサッシ/ ベランダ物干金具/ BS配線済/ 洗面化粧台/ カーテンレール/ ベランダ/ プロパンガス/ TVモニター付インターホン | ||
備考 | 【契約時必要書類】 契約金 本人:住民票1通、運転免許証(コピー)1通 保証会社加入必須(アーク賃貸保証) 緊急連絡先1名 | ||
富士不動産株式会社
秋田県由利本荘市岩渕下50
[免許番号] 秋田県知事免許(15)第392号 [加盟団体] (公社)秋田県宅地建物取引業協会
情報更新日:2025年9月1日 次回更新予定日:随時
